Rif.342 Appartamento

Marina di Massa
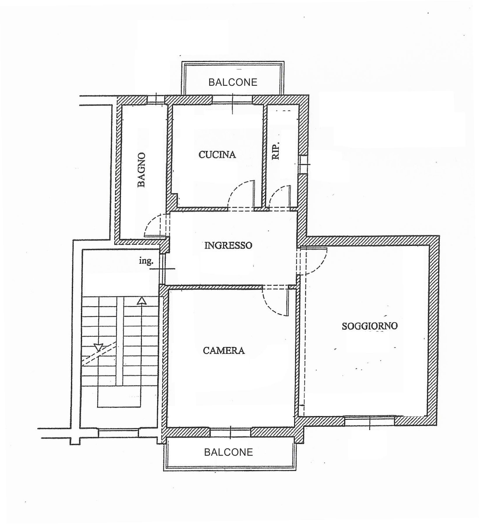
Planimetria Scarica PDF

Descrizione:

Marina di Massa centralissimo e a soli 100 mt dal mare. Appartamento posto in piano primo facente parte di un fabbricato di poche unità. Composto nel suo interno da: ingresso, disimpegno, ampio soggiorno, cucina abitabile, una camera da letto matrimoniale , ripostiglio, bagno finestrato con doccia e due balconi. Possibilità di ricavare la seconda camera da letto. Completa la proprietà un locale ad uso garage a piano terra. Termoautonomo. Arredato. Il prezzo di richiesta è di €. 270.000,00 trattabili. Maggiori informazioni presso i nostri uffici.

Descrizione:

Marina di Massa centralissimo e a soli 100 mt dal mare. Appartamento posto in piano primo facente parte di un fabbricato di poche unità. Composto nel suo interno da: ingresso, disimpegno, ampio soggiorno, cucina abitabile, una camera da letto matrimoniale , ripostiglio, bagno finestrato con doccia e due balconi. Possibilità di ricavare la seconda camera da letto. Completa la proprietà un locale ad uso garage a piano terra. Termoautonomo. Arredato. Il prezzo di richiesta è di €. 270.000,00 trattabili. Maggiori informazioni presso i nostri uffici.

Richiedi informazioni per questo immobile: